Первым этапом при возведении любого строительного объекта является разработка проекта. Этот документ позволит получить различные разрешительные бумаги в соответствующих органах, по нему можно рассчитать смету, контролировать и вести строительный процесс. Основное назначение проектной документации – это руководство для выполнения строительства. Именно поэтому состав проектной документации чётко регламентируется, а порядок утверждения и согласования определён законодательно федеральными нормативными актами.
Понятие проектной документации
Чтобы понять, что такое проектно-сметная документация, нужно представить себе совокупность графических и текстовых материалов, которые содержат целый перечень архитектурных, градостроительных, конструктивных, технологических и инженерных решений. Все эти решения и материалы используются для реализации того или иного строительного объекта.
В зависимости от сложности объекта (он может быть капитальный или некапитальный), трудности задачи, поставленной перед проектным бюро, проектная документация может иметь разную структуру и перечень разделов. От того, какие разделы включает в себя рабочая документация, зависит, какие специалисты будут участвовать в разработке материалов. Также может отличаться состав разделов проектной документации.
Назначение и роль в строительстве
Для начала разберёмся, зачем необходима проектно-сметная документация в строительстве. Основное назначение этих материалов состоит в управлении строительным процессом в ходе реализации объекта строительства. Кроме этого, оформление проектносметной документации является обязательным требованием законодательства. Разработка проектной документации нужна для принятия объекта недвижимости в эксплуатацию. Также различные виды проектной документации могут понадобиться при выполнении перепланировки зданий и проведении реконструкции.
Таким образом, можно сказать, что проектная документация (ГОСТ номер Р 21.1101) нужна для следующих целей:
- согласно законодательным требованиям (при этом обязательно выполняется согласование проектной документации);
- в качестве источника информации для реализации работ по строительству здания или сооружения;
- для определения расходов на возведение той или иной постройки.
По сути, проектная документация на строительство – это совокупность источников и материалов, отображающих для застройщика и заказчика концепцию возводимого объекта строительства. При этом согласно проекту намного проще обеспечивать бесперебойный строительный процесс и снабжение разных структур строительства.
Важно: составленный проект должен соответствовать определённым строительным, планировочным, градостроительным и конструктивным нормам, поэтому к его разработке стоит привлекать только квалифицированных специалистов. Также при этом должны строго соблюдаться основные требования к проектной и рабочей документации.
Организации, занимающиеся разработкой проекта
Изготовление проектной документации (ГОСТ номер Р 21.1101)можно доверить только той организации, которая имеет лицензию на проведение таких работ, то есть на проектирование зданий и сооружений определённой категории. В сети можно найти образец такого проекта, но только сокращённый пример, включающий лишь основные разделы, поскольку в полном проекте содержится масса информации и листов. Внешне в собранном виде проект напоминает целую книгу или большой альбом.
Проектная документация на строительство объекта может создаваться следующими лицами:
- Самим застройщиком. Например, если вы сами себе планируете построить небольшой дом.
- Проектной фирмой, имеющей лицензию на выполнение проекта.
- Если состав разделов проектной документации небольшой, то для выполнения вы можете нанять по договору физическое лицо, например, для этого можно обратиться к высококвалифицированному инженеру с опытом работы.
Важно: если сложность возводимого объекта такова, что требуется согласование проектной документации, то для её разработки лучше обращаться в лицензированную организацию.
При обращении в проектную организацию вы можете быть уверены, что будут соблюдаться все требования к рабочей документации. Более того, как правило, лицо, отвечающее за разработку проекта, выполняет авторский надзор в процессе строительства, то есть следит за соответствием выполняемых работ и проектных разработок. Также проектировщик отвечает за качество документации и соблюдения правила выполнения.
При этом процесс разработки проекта может сопровождаться делегированием некоторых обязанностей другим компетентным лицам. Например, проектная организация может делать только архитектурно-строительную часть проекта, а для выполнения сметной документации может обращаться к другим специалистам.
Чтобы заказать разработку проекта, заказчик должен предоставить исполнителю (проектировщику) ряд сопутствующих документов:
- Градостроительный план или же проект планировки земельного участка, на котором предполагается проводить строительство.
- Технические заключения о проведённых инженерных изысканиях. Если таковых нет, то понадобится задание на их реализацию.
- Если для эксплуатации строительного объекта необходимо подключаться к инженерным сетям, то понадобятся технические условия на подключение, полученные в соответствующих инстанциях.
Требования к проекту и его структуре
Состав проектно-сметной документации и требования к этим документам регламентируются Градостроительным кодексом РФ. Там же оговаривается, что требования, состав и порядок согласования проекта устанавливаются правительством нашей страны.
Состав разделов проектной документации определён постановлением Правительства РФ номер 87, которое было принято 16.02.08 г. Там говорится, что разработка проекта обязательно выполняется при возведении следующих типов строительных объектов:
- для капитальных строительных объектов производственного назначения;
- для зданий и сооружений непроизводственного назначения;
- для линейных объектов.
Для успешного согласования проектной документации состав должен чётко соответствовать законодательно установленным нормам.
Состав проекта
Как постановило Правительство РФ, правильно составленный проект должен включать в себя двенадцать разделов. Также отдельно оговаривает состав разделов проектной документации. Так, в проекте должны быть:
- Пояснительная записка.
- Генеральный план. В этот раздел входят градостроительные решения и схема планировки земельного участка с расположением и привязкой проектируемого объекта и обязательным указанием окружающей застройки.
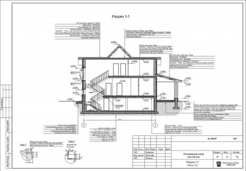
- Раздел, содержащий в себе весь перечень архитектурных решений (планировка, фасады, разрезы).
- Объёмно-планировочные решения относительно будущей постройки и конструктивные решения.
- Технологические решения с пояснительной запиской.
- Сведения об инженерной инфраструктуре, технических мероприятиях, сетях обеспечения.
- Проект организации строительного производства.
- Если в ходе строительства предполагается произвести снос капитальных строительных объектов, то это должно быть подробно отражено в отдельном разделе.
- Раздел, связанный с мероприятиями по охране окружающей среды.
- Отдельный раздел делается и для описания мероприятий, которые предпринимаются для облегчения доступа в строение маломобильных групп населения.
- На мероприятия, направленные на повышение энергоэффективности строительного объекта, отводится также целый раздел.
- Сметный расчёт.
- Пакет используемых документов и литературы.
Стоит добавить, что некоторые разделы содержат определённые подразделы. Например, раздел об инженерной инфраструктуре содержит в себе подразделы о сетях электроснабжения, водоснабжении и канализации, отоплении и вентиляции, газоснабжении, кондиционировании и связи.
Если в составе проекта должны присутствовать другие разделы, которые не включены в список обязательных разделов, утверждённых законодательно, то перечень этих пунктов оговаривает в договоре между заказчиком и исполнителем проекта.
Важно: если проект реализуется за счёт использования бюджетных средств, то в составе проекта должны быть все законодательно утверждённые разделы и подразделы. Такие строительные объекты проходят строжайшее согласование проектной документации.
Структура проекта
В составе любого проекта должны быть графические и текстовые материалы, которые будут давать полную информацию о строящемся объекте. В частности текстовые материалы должны содержать:
- полные сведения о строительном объекте;
- описывать различные архитектурные, строительные и технические решения;
- давать пояснения и ссылки на нормативные документы, сортаменты строительных материалов и иные источники, которые задействуются в ходе разработки проекта;
- все решения, которые были приняты в проекте, должны обосновываться расчётами.
Что касается графических материалов, то в них все принятые решения должны отображаться наглядно. Для этого можно использовать:
- различные графические схемы;
- чертежи;
- таблицы;
- фото фиксации;
- наглядные демонстрации объекта строительства (трёхмерное изображение, фасады или макет).







